x
R O Y A L E
Elevators

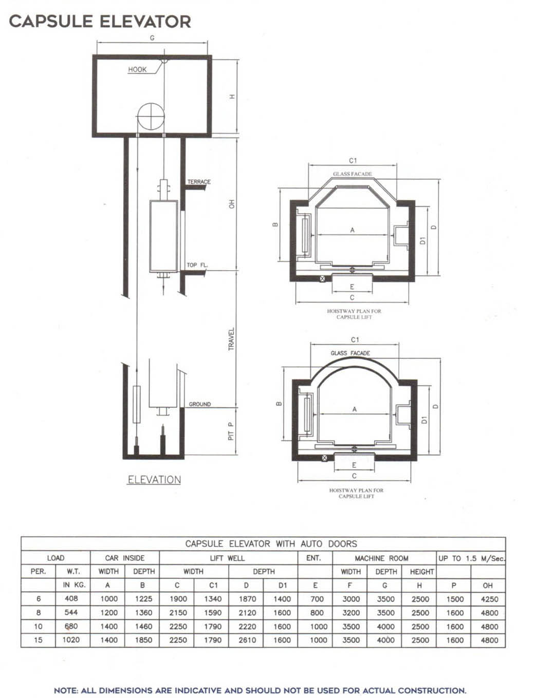
Capsule Elevators