x
R
O
Y
A
L
E
Elevators
Get a quote
Mo:
+91 7595955880
Ph:
+91 33 6647 2786
Email:
royale_elevators@yahoo.com
Follow us:
Home
About
Products
Cabin Overview
Machine Overview
Elevator Electronics
Safety Systems
Project Planning
Doors System
CATALOGUE DOWNLOAD
Italian elevators
Passenger Hydraulic Elevators
Goods Hydraulic Elevators
Hospital Hydrauilc Elevators
Capsule Hydraulic Elevators
Home Elevators
CATALOGUE DOWNLOAD
Customisation
GAD (MR & MRL)
Passenger Elevators
Hydraulic elevators
Hospital Elevators
Goods elevators
Capsule Elevators
Home elevators
Car elevators
Clients
News
Contact
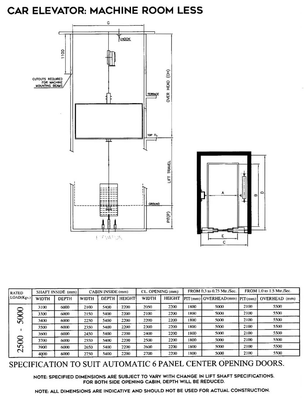
Car Elevators
home
GAD (MR & MRL)
Car Elevators